Phantastisches Traumschloß nahe Udine
Ort: ITA-33040 Torreano
Kaufpreis: € 1.500.000
Objekt:
Ein besonderes Objekt und sehr attraktiv welches sofort bewohnt werden kann.
Das Hauptgebäude stammt aus dem 16. Jahrhundert, der Turm im Ursprung aus dem 11. Jahrhundert
Das Schloß ist erdbebensicher verstärkt, sowohl in den Wänden als auch in den Decken.
Das gesammte Objekt ist restauriert und bietet modernen Wohnkomfort bis hin zu 3-fach verglasten Fenstern.
Die Gaseizung ist neu in 2024 eingebaut.; alle Kamine sind saniert und voll benutzbar.
Der erste Stock weist darüber hinaus eine separate Heizung über einen zentralen Kachelofen aus.
Der mittelalteriche Turm ist voll benutzbar und gibt einen atemberaubenden Blick auf die Umgebung frei.
Das separat zu verkaufende Nebengebäude ist auch völlig restauriert und bietet Platz für 5 separat zu bewohnende Apartments
A special property and highly attractive which can be moved in right away.
The main building is from the 16th century, the tower originates from the 11th ceentury.
The structure of the castle and the annex has been enforced in both walls and ceilings, to make it earthquake proof.
It is fully restored and in a state of the art condition, up to triple glazed windows.
Central gas heating is available and newly installed in 2024.
On first floor, there is a separat wood burning stove available, to heat the whole floor.
All open fire places are restored and fully functional.
The old tower is fully usable and allows a stunning view in the surrounding landscapes.
The annex itself is also fully restored and offers plenty of space to have 5 separat apartments.
It will be sold separately.
Das Hauptgebäude stammt aus dem 16. Jahrhundert, der Turm im Ursprung aus dem 11. Jahrhundert
Das Schloß ist erdbebensicher verstärkt, sowohl in den Wänden als auch in den Decken.
Das gesammte Objekt ist restauriert und bietet modernen Wohnkomfort bis hin zu 3-fach verglasten Fenstern.
Die Gaseizung ist neu in 2024 eingebaut.; alle Kamine sind saniert und voll benutzbar.
Der erste Stock weist darüber hinaus eine separate Heizung über einen zentralen Kachelofen aus.
Der mittelalteriche Turm ist voll benutzbar und gibt einen atemberaubenden Blick auf die Umgebung frei.
Das separat zu verkaufende Nebengebäude ist auch völlig restauriert und bietet Platz für 5 separat zu bewohnende Apartments
A special property and highly attractive which can be moved in right away.
The main building is from the 16th century, the tower originates from the 11th ceentury.
The structure of the castle and the annex has been enforced in both walls and ceilings, to make it earthquake proof.
It is fully restored and in a state of the art condition, up to triple glazed windows.
Central gas heating is available and newly installed in 2024.
On first floor, there is a separat wood burning stove available, to heat the whole floor.
All open fire places are restored and fully functional.
The old tower is fully usable and allows a stunning view in the surrounding landscapes.
The annex itself is also fully restored and offers plenty of space to have 5 separat apartments.
It will be sold separately.
Lage:
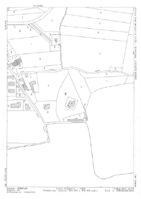
Das Schloß schmiegt sich in die ansteigenden Weinberge, mit Blick auf den Beginn des Alpenkamms.
Es liegt sehr verkehrsgünstig; Udine ist 18 Kilometer entfernt; Triest 40 Kilometer.
Die Österreichische Grenze ist in weniger als einer Stunde erreichbar.
The castle is nestled in the ascending wine yards with a view on to the beginning of the alps.
Being perfectly well situated, Udine is only 18 kilometres away, Trieste 40 kilometres.
The Austrian border is less than an hour away.
Es liegt sehr verkehrsgünstig; Udine ist 18 Kilometer entfernt; Triest 40 Kilometer.
Die Österreichische Grenze ist in weniger als einer Stunde erreichbar.
The castle is nestled in the ascending wine yards with a view on to the beginning of the alps.
Being perfectly well situated, Udine is only 18 kilometres away, Trieste 40 kilometres.
The Austrian border is less than an hour away.
Ausstattung:
Die Ausstattung ist modernen Ansprüchen gewachsen und sehr gepflegt.
Es gibt mehrere Küchen im Hauptgebäude, teils mit offener Feuerstelle.
All appliances are state of the art.
There are several kitchens, partly with open cooking facilities.
Es gibt mehrere Küchen im Hauptgebäude, teils mit offener Feuerstelle.
All appliances are state of the art.
There are several kitchens, partly with open cooking facilities.
Sonstiges:
**ACHTUNG*** Unbedingt beachten !!
Aufgrund der Vereinbarung mit den Immobilieneigentümern sind wir dazu verpflichtet die vollständigen Adressdaten eines Interessenten zu hinterlegen, bevor wir detaillierte Objektinformationen weitergeben dürfen.
Bitte teilen Sie uns daher Ihren Namen, Ihre derzeitige Anschrift, E-Mailadresse und eine Telefonnummer mit.
Wir werden Ihnen die gewünschten Informationen dann umgehend zukommen lassen.
Sollten wir oben angeführte Informationen nicht erhalten, können wir Ihre Anfrage leider nicht bearbeiten.
Der Auftraggeber wurde über die Informationspflicht betreffend Energieausweiskennzahl informiert. Der Energieausweis wir nachgerreicht.
**Unsere Kompetenz ist Ihr Vorteil**
Wir bieten Ihnen ein Rundumservice bis hin zur Vertragserstellung, Treuhandabwicklung und natürlich Grundbuchseintragung.
Sie ersparen sich viele Wege und finden bei uns alles unter einem Dach.
Angegebene Daten und Maße wurden uns vom Eigentümer mitgeteilt, bzw. aus den Branchenüblichen Datenquellen entnommen.
Wir übernehmen keinerlei Haftung für nicht von uns vermessenen Flächen, bzw. Daten welche durch Unterlagen belegt werden können.
Es gelten ausschließlich die Angaben, welche in einem Kauf- Mietvertrag angegeben werden.
Der Abgeber steht mit dem zu vermittelnder Makler in einem wirtschaftlichen Naheverhältnis.
Aufgrund der Vereinbarung mit den Immobilieneigentümern sind wir dazu verpflichtet die vollständigen Adressdaten eines Interessenten zu hinterlegen, bevor wir detaillierte Objektinformationen weitergeben dürfen.
Bitte teilen Sie uns daher Ihren Namen, Ihre derzeitige Anschrift, E-Mailadresse und eine Telefonnummer mit.
Wir werden Ihnen die gewünschten Informationen dann umgehend zukommen lassen.
Sollten wir oben angeführte Informationen nicht erhalten, können wir Ihre Anfrage leider nicht bearbeiten.
Der Auftraggeber wurde über die Informationspflicht betreffend Energieausweiskennzahl informiert. Der Energieausweis wir nachgerreicht.
**Unsere Kompetenz ist Ihr Vorteil**
Wir bieten Ihnen ein Rundumservice bis hin zur Vertragserstellung, Treuhandabwicklung und natürlich Grundbuchseintragung.
Sie ersparen sich viele Wege und finden bei uns alles unter einem Dach.
Angegebene Daten und Maße wurden uns vom Eigentümer mitgeteilt, bzw. aus den Branchenüblichen Datenquellen entnommen.
Wir übernehmen keinerlei Haftung für nicht von uns vermessenen Flächen, bzw. Daten welche durch Unterlagen belegt werden können.
Es gelten ausschließlich die Angaben, welche in einem Kauf- Mietvertrag angegeben werden.
Der Abgeber steht mit dem zu vermittelnder Makler in einem wirtschaftlichen Naheverhältnis.
Objektnummer: 4764
Eckdaten:
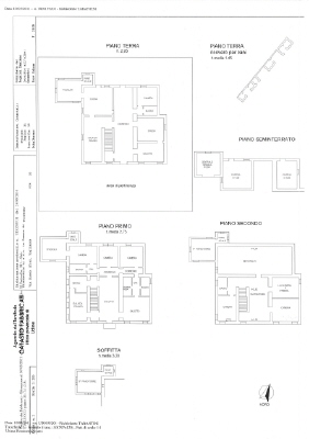
Objektart:  | Häuser |
Zimmer/Räume:  | 12 |
Grundstücksfläche m² ca.:  | 6.000 |
Nutzfläche  | 1500 |
Anzahl der Stockwerke  | 3 |
Zustand:  | vollständig renoviert |
Bezugstermin:  | nach Absprache |
Einbauküche vorhanden:  | Ja |
Heizungsart:  | Zentralheizung |
Balkon/Terrasse vorhanden:  | Ja |
vermietet:  | Nein |
Befeuerung/Energieträger  | Öl |
Region:  | Venetien-Friaul-Julisch |
Modernisierung/Sanierung:  | 2010 |
Ausstattung:  | Gehoben |
Gäste-WC:  | Ja |
Keller:  | Ja |