VERKAUFT--Einfamilienhaus Neubau mit 143m²
Ort: 2340 Mödling
Kaufpreis: € 869.000
Objekt:
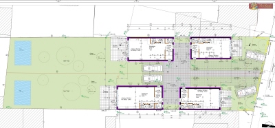
Zum Verkauf stehen 4 neu errichtete Einfamilienhäuser inmitten Mödlings.
Die Häuser liegen auf einem ca. 1.100m² großem Grundstück welches Nord- Süd ausgerichtet ist.
Verwendet wurden natürlich modernste Baustoffe und zeitgemäße Installationen.
Dieses Angebot versteht sich als schlüsselfertiges Objekt.
Über die Endausstattung ist mit dem Bauträger direkt zu verhandeln.
Eine schlüsselfertige Übergabe ist durchaus möglich.
Ausgestattet mit Luftwärmepumpe ,Aufbereitumg für E-Auto Ladestation und PV Anlage.
Die Fenster sind mit Rafstore Beschatung ausgestattet, ausgenommen die Dachfenster.
Die Häuser teilen sich wie folgt auf:
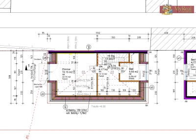
EG
Vorraum und Garderobe mit 6,99m²
Gäste WC mit 2,03m²
Technikraum mit 1,55m²
sehr große Wohnküche mit 42,25m²
1.Stock
Vorraum mit 4,32m²
Badezimmer mit 5,12m²
Schlafzimmer mit 13,07m²
Schlafzimmer mit 15,51m²
Schlafzimmer mit 12,45m²
Dachgeschoß
Vorraum mit 6,17m²
Badezimmer mit 5,55m²
Schlafzimmer mit 15,15m²
Die Ausstattung kann natürlich noch individuell mitbestimmt werden.
Zwei der vier Häuser stehen mit einem Preis von € 649.000,- zum Verkauf.
Zwei weitere mit großem Grundstück und Pool werden zu € 868.000,- angeboten.
Diese angegebenen Kaufpreise sind je nach Ausstattung auf Verhandlungsbasis zu verstehen.
Die Häuser liegen auf einem ca. 1.100m² großem Grundstück welches Nord- Süd ausgerichtet ist.
Verwendet wurden natürlich modernste Baustoffe und zeitgemäße Installationen.
Dieses Angebot versteht sich als schlüsselfertiges Objekt.
Über die Endausstattung ist mit dem Bauträger direkt zu verhandeln.
Eine schlüsselfertige Übergabe ist durchaus möglich.
Ausgestattet mit Luftwärmepumpe ,Aufbereitumg für E-Auto Ladestation und PV Anlage.
Die Fenster sind mit Rafstore Beschatung ausgestattet, ausgenommen die Dachfenster.
Die Häuser teilen sich wie folgt auf:
EG
Vorraum und Garderobe mit 6,99m²
Gäste WC mit 2,03m²
Technikraum mit 1,55m²
sehr große Wohnküche mit 42,25m²
1.Stock
Vorraum mit 4,32m²
Badezimmer mit 5,12m²
Schlafzimmer mit 13,07m²
Schlafzimmer mit 15,51m²
Schlafzimmer mit 12,45m²
Dachgeschoß
Vorraum mit 6,17m²
Badezimmer mit 5,55m²
Schlafzimmer mit 15,15m²
Die Ausstattung kann natürlich noch individuell mitbestimmt werden.
Zwei der vier Häuser stehen mit einem Preis von € 649.000,- zum Verkauf.
Zwei weitere mit großem Grundstück und Pool werden zu € 868.000,- angeboten.
Diese angegebenen Kaufpreise sind je nach Ausstattung auf Verhandlungsbasis zu verstehen.
Sonstiges:
***ACHTUNG*** Unbedingt beachten !!
Aufgrund der Vereinbarung mit den Immobilieneigentümern sind wir dazu verpflichtet die vollständigen Adressdaten eines Interessenten zu hinterlegen, bevor wir detaillierte Objektinformationen weitergeben dürfen.
Bitte teilen Sie uns daher Ihren Namen, Ihre derzeitige Anschrift, E-Mailadresse und eine Telefonnummer mit.
Wir werden Ihnen die gewünschten Informationen dann umgehend zukommen lassen.
Sollten wir oben angeführte Informationen nicht erhalten, können wir Ihre Anfrage leider nicht bearbeiten.
Der Auftraggeber wurde über die Informationspflicht betreffend Energieausweiskennzahl informiert. Der Energieausweis wird nachgerreicht.
**Unsere Kompetenz ist Ihr Vorteil**
Wir bieten Ihnen ein Rundumservice bis hin zur Vertragserstellung, Treuhandabwicklung und natürlich Grundbuchseintragung.
Sie ersparen sich viele Wege und finden bei uns alles unter einem Dach.
Angegebene Daten und Maße wurden uns vom Eigentümer bzw. aus den Branchenüblichen Datenquellen entnommen.
Wir übernehmen keinerlei Haftung für nicht von uns vermessenen Flächen, bzw. Daten welche durch Unterlagen belegt werden können.
Es gelten ausschließlich die Angaben, welche in einem Kauf- Mietvertrag angegeben werden.
Der Abgeber steht mit dem zu vermittelnden Dritten in einem wirtschaftlichen Naheverhältnis.
Aufgrund der Vereinbarung mit den Immobilieneigentümern sind wir dazu verpflichtet die vollständigen Adressdaten eines Interessenten zu hinterlegen, bevor wir detaillierte Objektinformationen weitergeben dürfen.
Bitte teilen Sie uns daher Ihren Namen, Ihre derzeitige Anschrift, E-Mailadresse und eine Telefonnummer mit.
Wir werden Ihnen die gewünschten Informationen dann umgehend zukommen lassen.
Sollten wir oben angeführte Informationen nicht erhalten, können wir Ihre Anfrage leider nicht bearbeiten.
Der Auftraggeber wurde über die Informationspflicht betreffend Energieausweiskennzahl informiert. Der Energieausweis wird nachgerreicht.
**Unsere Kompetenz ist Ihr Vorteil**
Wir bieten Ihnen ein Rundumservice bis hin zur Vertragserstellung, Treuhandabwicklung und natürlich Grundbuchseintragung.
Sie ersparen sich viele Wege und finden bei uns alles unter einem Dach.
Angegebene Daten und Maße wurden uns vom Eigentümer bzw. aus den Branchenüblichen Datenquellen entnommen.
Wir übernehmen keinerlei Haftung für nicht von uns vermessenen Flächen, bzw. Daten welche durch Unterlagen belegt werden können.
Es gelten ausschließlich die Angaben, welche in einem Kauf- Mietvertrag angegeben werden.
Der Abgeber steht mit dem zu vermittelnden Dritten in einem wirtschaftlichen Naheverhältnis.
Objektnummer: 4024
Eckdaten:
Objektart:  | Einfamilienhaus |
Zimmer/Räume:  | 5 |
Wohnfläche in m² ca.:  | 143 |
Anzahl der Stockwerke  | 2 |
Zustand:  | Erstbezug |
Alt-/Neubau:  | Neubau |
Baujahr:  | 2022 |
Balkon/Terrasse vorhanden:  | Ja |
Gäste-WC:  | Ja |